
Visualisierungen und Pictogramme: PPA
Wohnen und Arbeiten in der Altstadt
Celle
Bachelorthesis
Leistungsphase 0-3
2012
Die Kreisstadt Celle liegt im Einzugsgebiet der niedersächsischen Metropolregion Hannover Braunschweig Göttingen Wolfsburg. Mit etwa 70000 Einwohnern ist Celle neben Lüneburg die größte Stadt zwischen Hannover und Hamburg.
Der historische Kern der Stadt, die Altstadt, ist überwiegend durch eine kleinteilige Parzellenstruktur mit Fachwerkhäusern geprägt. Vorzufinden sind verschiedene Arten des Einzelhandels, Kulturelle Einrichtungen, Gastronomien, Dienstleistungen und Wohnen.
Die Altstadt erscheint zunächst in einem gesunden funktionsfähigen Zustand. Doch beim genaueren Betrachten zeigen sich viele Mängel in der städtebaulichen Struktur und in der alten Bausubstanz. Weitere Probleme sind rückgängiges innerstädtischen Wohnen, sowie eine erhöhte Anzahl an leer stehenden Ladenflächen. Trotzdem entsteht ein Mangel an größeren Einzelhandelsflächen. Es besteht die Befürchtung, dass in Zukunft Einkaufszentren in peripherer Lage zur Konkurrenz der Innenstadt werden könnten.
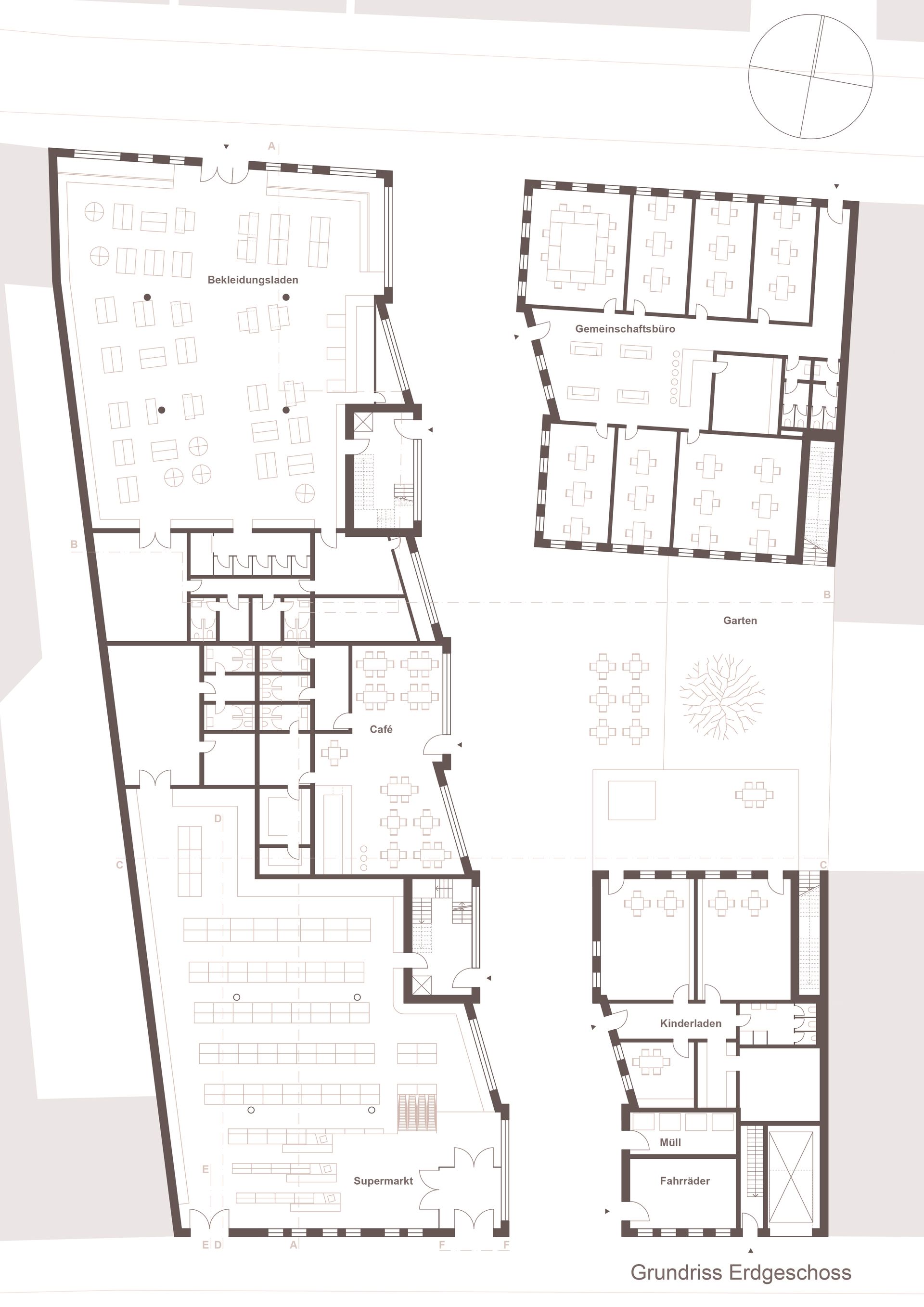
Am südlichen Ende der Altstadt, zwischen der Bergstraße und dem Südwall, liegt ein etwa 3000qm großes Areal. Die Aufgabe für eine neue Bebauung setzt das Ziel eine Aufwertung der Städtebaulichen Qualität an dieser Stelle zu erreichen. Dies beinhaltet großzügige Flächen für den Einzelhandel zu schaffen und innerstädtisches Wohnen zu stärken. Dabei soll die vorhandene Stadtstruktur, sowie die Architektur der Umgebung berücksichtigt und neu interpretiert werden. Des Weiteren werden Vorschläge für eine aufwertende Bebauung der angrenzenden Nachbarschaftsgrundstücke überlegt.
Das städtebauliche und architektonische Konzept sieht vor den Entwurf rücksichtsvoll in die historische Altstadt Celles einzugliedern. Die Gebäude sollen ein kleiner Teil der Altstadt werden, sie sollen sie ergänzen und die Städtebauliche Lücke zwischen der Bergstraße und dem Südwall schließen. Dazu wurde die unmittelbare Umgebung intensiv untersucht. Merkmale der Umgebung sollen aufgegriffen werden und im Entwurf Zeit gemäß interpretiert werden. Es besteht die anspruchsvolle Aufgabe eine möglichst dichte Bebauung auf einem großen Grundstück zu errichten, ohne dabei unangemessen hoch zu bauen. Dabei ist es wichtig, in Bezug auf die zu entwerfenden Einzelhandelsflächen und einer dichten Bebauung, die Privatsphäre der zukünftigen Anwohner zu gewährleisten. Die Belichtung der Wohneinheiten spielt ebenfalls eine wichtige Rolle.
Die Heeringgasse verläuft heute auf der rechten Seite des Grundstücks. Bis in die 1960er Jahre verlief sie etwa in der Mitte. Im Entwurf erhält die Gasse einen ähnlichen Verlauf wie der historische Weg. Hierbei wird darauf geachtet, dass die Sichtachsen attraktive Blicke zulassen.
Die Funktionen Einzelhandel, Büros, Café, sowie Kinderladen im Erdgeschoss, erhalten große zusammen hängende Flächen. Sie sind vertikal vom Wohnen im privaten Ober- und Dachgeschoss getrennt. Dort lösen sich die Gebäude in kleinteiligere Kubaturen auf, die sich in Zeilen hintereinander aufreihen. Dadurch entsteht eine große, komplexe Gebäudestruktur, die aber von außen kleinteilig erscheint. Das heißt, dass es drei Gebäude sind, die den Anschein machen, als seien es neun.
Im Erdgeschoss entstehen zwei große Einzelhandelsflächen im westlichen Gebäude. Ein Bekleidungsladen mit 600 qm an der Bergstraße und ein Supermarkt mit 570qm am Südwall. Außerdem ist in der Mitte der Heeringgasse eine Fläche mit 180qm für ein Café vorgesehen. Das Café nutzt den öffentlichen Teil des Hofes mit.
Im nördlichen Gebäude ist eine Fläche mit 450qm für ein Gemeinschaftsbüro vorgesehen. Hier gibt es einen Sitzungssaal mit 50qm, mehrere Büros mit 30qm und eines mit 60qm. Besonders attraktiv wird das Objekt durch eine Lounge als Treffpunkt in der Mitte der Fläche.
Das südliche Gebäude erhält einen Kinderladen. Hier sind zwei große Räume von 45qm vorgesehen von denen einer für die ständige Nutzung der Kinder vorgesehen ist. Der zweite Raum ist als Mehrzweckraum gedacht, der hauptsächlich vom Kinderladen genutzt, aber auch den Anwohnern der Heeringgasse für Veranstaltungen zur Verfügung steht. Außerdem entstehen hier eine Aufenthaltsküche für die Erzieher, eine Umkleide und ein Lagerraum. Des Weiteren sind in diesem Gebäude ein Fahrradabstellraum, ein Raum mit Müllcontainern und die Zufahrt zum Lift der Tiefgarage.
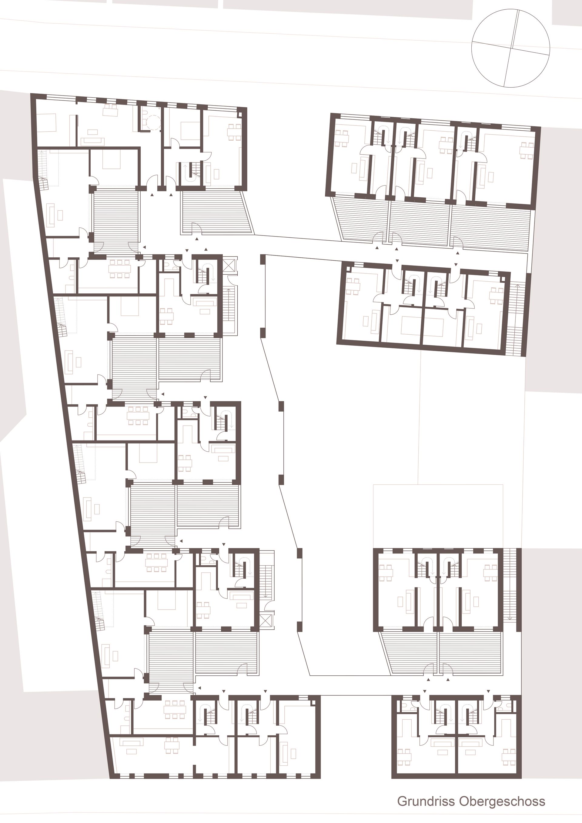
Ab dem Obergeschoss ist der Wohnbereich vorzufinden. Die Erschließung der Einzelnen Wohnungen erfolgt zunächst über das Erdgeschoss durch zwei Treppenhäuser des Westhauses und danach im Obergeschoss über außen liegende Wege. Die Wohnungen des Nord- und Südhauses werden über kleine Brücken erreicht. Das Nord- und das Südhaus haben Treppen, die in den privaten umzäunten Teil des Gemeinschaftshofes im Erdgeschoss führen.
Es gibt fünf verschiedene Wohnungstypen. Zum einen die Wohnungen mit rechteckigem Grundriss, die eine Fläche von 90 bis 120qm haben, als zweites die mit einem quadratischen Grundriss mit 120 bis 135qm. Als Weiteres den exklusiven C-Typen mit einer Grundrissfläche von 170 qm. Der C-Typ ist im Gegensatz zu den anderen Wohnungsarten im Obergeschoss jeweils in zwei „Häuser“ des Gebäudes verschachtelt. Ein „Vis a vis“ von Küche und Wohnraum, über den privaten Hof, gibt der Wohnung den Charakter eines Atriumhauses. Die Zimmer des Obergeschosses scheinen hier mit dem Hof zu einem Raum zu verschmelzen. Zuletzt gibt es davon abweichend noch zwei Einheiten als L-Typ. Einen kleineren der eingeschossig und rollstuhlgerecht ist, mit einer Fläche von 65qm und einen Weiteren, der eine Fläche von 160qm hat. Die meisten der Wohneinheiten haben sowohl einen Balkon als auch einen kleinen eigenen Hof. Der C-Typ hat zusätzlich noch eine großzügige Dachterrasse.
Die kleinen privaten Höfe sind an einen alten Häuserkomplex in der Bergstraße, direkt neben dem zu beplanenden Grundstück angelehnt. Dort gibt es ein Haus mit einem erhöhten Hof, beziehungsweise einem hochgelegten Atrium. Diese Idee wurde aufgegriffen und in den Entwurf integriert. Die Höfe, die jeweils südlich an den Wohnungen liegen, bilden zu dem einen Sichtschutz vor den Erschließungswegen der Nachbarn. Die Zeilen haben eine Distanz von nur 6,5m zueinander. Aus diesem Grunde sind die Dachgeschosse zum Norden hin bis auf Dachfenster komplett verschlossen, um Blicke in die Räumlichkeiten des Nachbarn zu verhindern. Zum Süden hingegen sind die Räume sehr offen.
Die Fassade erscheint in einem hellen Ziegel, der die Belichtung der Höfe und Innenräume unterstützt. Das Verblendmauerwerk hat mit seinen beabsichtigten Ausblühungen ein zugleich uriges, als auch modern und elegant anmutendes Erscheinungsbild. Hierdurch entsteht eine Adaption der mittelalterlichen Altstadt mit dem durch Ziegelbauten geprägten Teil des Südwalls.










