
Visualisierungen: PPA
Wohnen und Arbeiten
Bremen
Leistungsphase 1-5
2011
Für eine Familie mit zwei Kindern sollen in einem Neubau eines Bremer Hauses Flächen zum Wohnen und Arbeiten geschaffen werden. Die verschieden Funktionen werden so in das Haus integriert, dass die Nutzung des Büros durch die Besitzer möglich ist, die Büroflächen aber auch vermietet werden können.
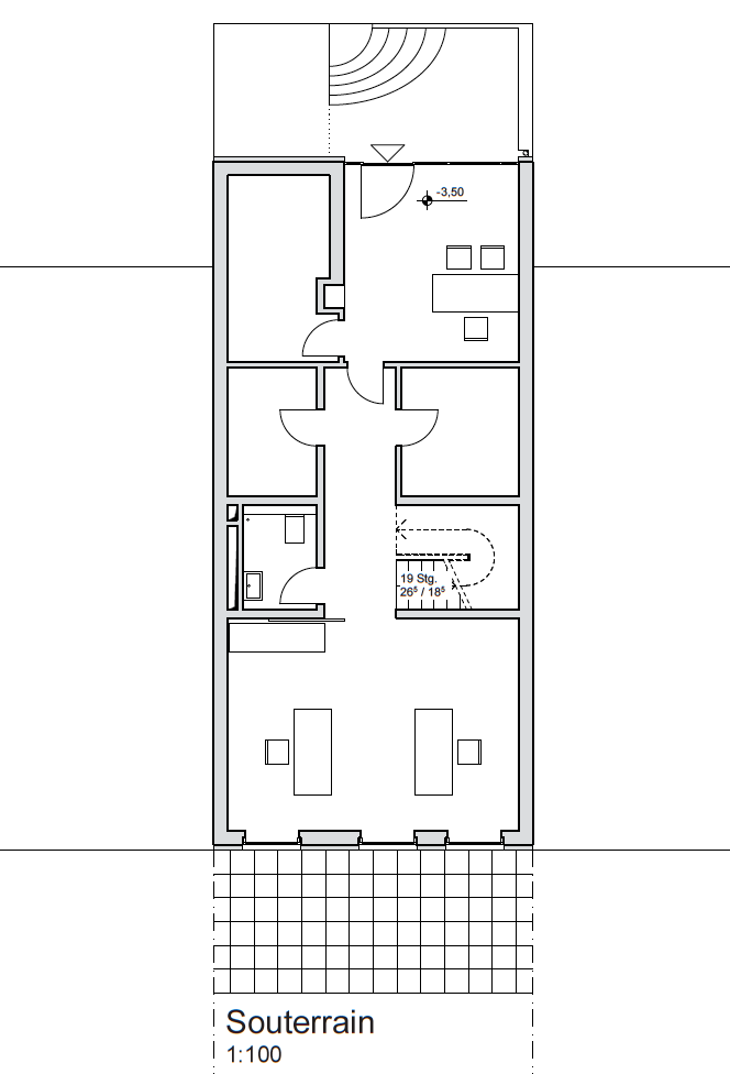
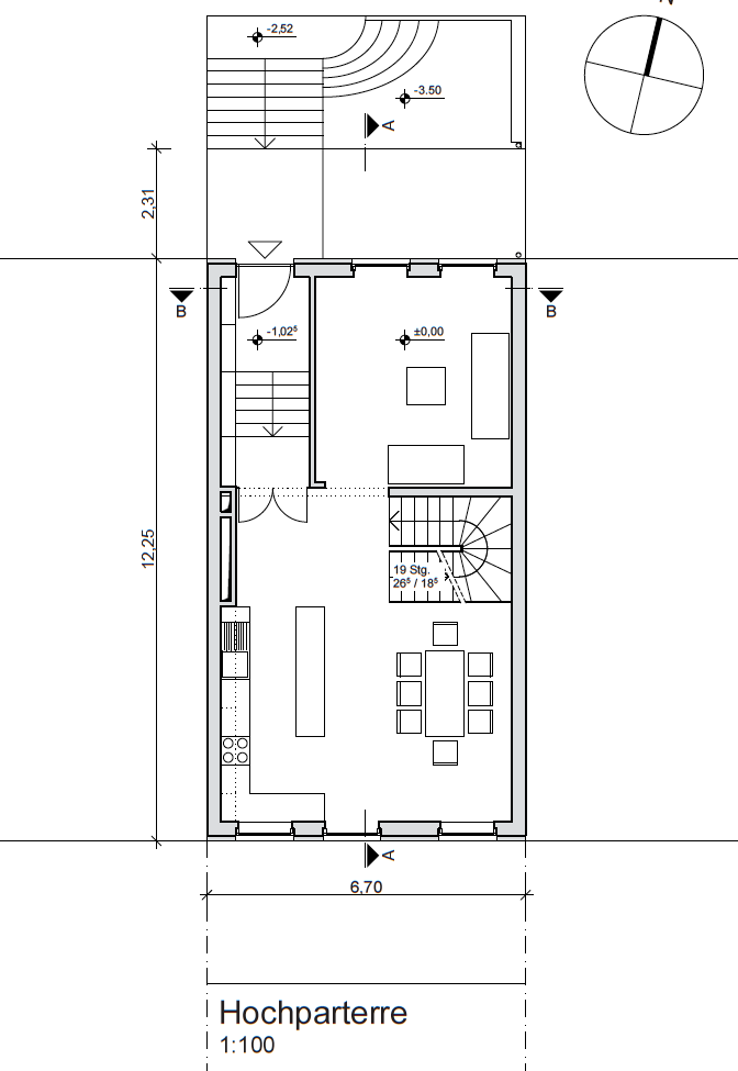
Die Büroraume mit Lager und Archiv werden im Souterrain konzipiert. Das Büro wird im Allgemeinen von der Straßenseite aus betreten, kann aber durch die Besitzer des Hauses auch durch die innen liegende Treppe erreicht werden. Im vorderen Bereich befindet sich ein öffentliches Empfangsbüro, im hinteren Bereich ist das zurück gezogene Hauptbüro. Das Hochparterre wird über eine Treppe im Außenbereich erschlossen. In dieser Etage befindet sich der zentrale Familienbereich mit Wohnküche und Wohnzimmer, der der Familie als Hauptkommunikationszone dient. Das Obergeschoss ist die Rückzugszone der Kinder, das Dachgeschoss der private Bereich der Eltern. Außerdem ist im Dachgeschoss ein alternatives Wohnzimmer vorgesehen, falls das Wohnzimmer im Hochparterre alternativ als dritter Büroraum in Anspruch genommen werden sollte.
Das neu zu bebauende Grundstück ist Teil einer Zeile von neun Stadthäusern mit je 3-4 Etagen in der Uhlandstraße in Bremen Schwachhausen. Sechs der Bauten sind um 1900 mit den typischen Merkmalen des Altbremer Hauses errichtet worden die zum großen Teil schon mal saniert, umgebaut und modernisiert wurden. Die letzten drei Häuser der Reihe sind später ergänzt worden und weisen nicht oder nur teil- weise die typischen Charakteristiken dieser Bautypologie auf. Die heutige Bebauung passt sich nicht in die Häuserreihe ein und wirkt wie ein Fremdkörper. Die zu bebauende Fläche beträgt zur Straßen- und Gartenseite 6,70m und zu den Nachbarhäusern 12,5m. Nördlich des Hauses befindet sich ein schmaler Vorgarten, eine nicht stark befahrene Straße und gegenüber sind ebenfalls Altbremer Häuser. Südlich gelegen, hinter den Gärten und Garagen, ist eine breite Bahntrasse. Keine hundert Meter entfernt westlich ist die stark befahrene Schwachhauser Heerstraße.




